ようこそ ゲスト 様

松戸市 賃貸店舗・事務所

松戸市 賃貸店舗・事務所

お問い合わせ番号:f11174-161368
賃貸店舗・事務所
松戸市常盤平7
京成松戸線 五香駅 ( 徒歩 13分 )
賃料 38.50万円(税込)
(坪単価:0.95万円)
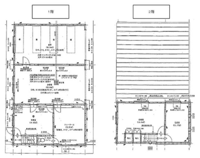
倉庫部分、事務所部分が一体となった人気の仕様です。敷地内に複数台駐車可能。
千葉、市川エリア・東東京エリアの事業用不動産専門店!「テナントスタイル市川」までお気軽にお問い合わせ下さい。工事や融資、機材手配もワンストップで可能!
管理費 -
保証金
解約引
6ヶ月
1ヶ月(税別)
敷金
礼金
更新料
-
2ヶ月(税別)
1ヶ月(税別)
建物/専有
面積
134.14m2
(40.57坪)
土地面積 - 築年月 2008年11月
(平成20年11月)
駐車場 有り無料/3台 所在階 1-2階 地上階数
地下階数
2階
-
現況 使用中
入居/引渡 空予定 
引渡年月 2026年04月中旬
契約期間 3年
取引 仲介
物件登録日 2026年3月6日
情報更新日 2026年3月6日
・初回保証料100%
・年間保証料10%
・1階倉庫区画は土間仕様
・第二種住居地域
・飲食店も相談可能
松戸市 賃貸店舗・事務所 のことならお気軽にご相談ください。
テナントスタイル市川
TEL:047-702-9926
営業時間:10:00-18:00
定休日 :水曜
メールでのお問い合わせ

お電話の場合は「テナントショップを見ました。物件番号は < f11174-161368 > です」と伝えていただくとスムーズにお応えできます。

  • 借りる
  • テナント・貸店舗を探す
  • オフィス・事務所を探す
  • 倉庫・工場を探す
  • 貸土地・借地を探す
  • 居抜き物件
  • 地域で探す
  • 買う
  • 売買物件を探す
非公開物件情報
一般公開物件
444
会員用非公開物件
0
  • ログイン
  • 新規登録
  • 依頼する
  • 新着物件!未公開物件!地元に詳しい!
  • 物件リクエスト
検索する
スペース区切りの複合語句検索はできません

  • スマホで物件検索
  • 実績紹介
  • 物件管理
  • 会社概要・アクセス
  • テナントスタイル