ようこそ ゲスト 様

市川市 賃貸店舗・事務所

市川市 賃貸店舗・事務所

お問い合わせ番号:f11174-160424
賃貸店舗・事務所
市川市八幡2
JR総武線 本八幡駅 ( 徒歩 1分 )
賃料 22.00万円(税込)
(坪単価:2.69万円)
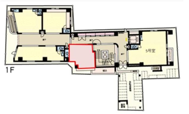
本八幡駅直結の複合ビル1階。飲食店不可。スケルトン渡しです。
千葉、市川エリア・東東京エリアの事業用不動産専門店!「テナントスタイル市川」までお気軽にお問い合わせ下さい。工事や融資、機材手配もワンストップで可能!
管理費 -
保証金
解約引
10ヶ月
1ヶ月(税別)
敷金
礼金
-
1ヶ月(税別)
建物/専有
面積
27.04m2
(8.17坪)
土地面積 - 築年月 1990年8月
(平成2年8月)
駐車場 所在階 1階 地上階数
地下階数
9階
-
構造 鉄骨鉄筋コンクリート造(SRC)
現況 使用中
入居/引渡 空予定 
引渡年月 2026年03月上旬
契約期間 定期借家5年
取引 仲介
物件登録日 2026年2月14日
情報更新日 2026年4月2日
・解約予告:6ケ月前
・再契約料:新賃料の1.1ヶ月分
・新耐震基準適用
市川市 賃貸店舗・事務所 のことならお気軽にご相談ください。
テナントスタイル市川
TEL:047-702-9926
営業時間:10:00-18:00
定休日 :水曜
メールでのお問い合わせ

お電話の場合は「テナントショップを見ました。物件番号は < f11174-160424 > です」と伝えていただくとスムーズにお応えできます。

  • 借りる
  • テナント・貸店舗を探す
  • オフィス・事務所を探す
  • 倉庫・工場を探す
  • 貸土地・借地を探す
  • 居抜き物件
  • 地域で探す
  • 買う
  • 売買物件を探す
非公開物件情報
一般公開物件
444
会員用非公開物件
0
  • ログイン
  • 新規登録
  • 依頼する
  • 新着物件!未公開物件!地元に詳しい!
  • 物件リクエスト
検索する
スペース区切りの複合語句検索はできません

  • スマホで物件検索
  • 実績紹介
  • 物件管理
  • 会社概要・アクセス
  • テナントスタイル